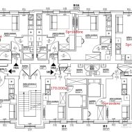
Mieszkanie na sprzedaż Bydgoszcz, Śródmieście

1 pokoj
25.10 m²
6 932,27 zł/m2
parter
OJN-MS-125240

174 000 zł

Mieszkanie na sprzedaż
Nowa oferta

Szczegóły oferty

Symbol oferty OJN-MS-125240
Powierzchnia 25,10 m²
Liczba pokoi 1
Rodzaj budynku kamienica
Technologia budowlana cegła
Piętro parter
Stan lokalu do adaptacji
Okna PCV
Andrzej

Andrzej

Agent
Nr licencji: 777

Napisz wiadomość 6 Ofert

Opis nieruchomości

Oferuję na sprzedaż przytulne,  mieszkanie o powierzchni 25,1 m², położone na parterze w odrestaurowanej kamienicy. Budynek przeszedł generalny remont, w ramach którego wymieniono wszystkie instalacje (elektryczną, wodno-kanalizacyjną, grzewczą), a także stolarkę okienną i drzwiową.
 

Mieszkanie jest wysokie i posiada dużą kubaturę, co daje poczucie przestrzeni i komfortu, rzadko spotykane w nowych inwestycjach. Pomieszczenia są jasne i ustawne, idealne zarówno dla singla, pary, jak i jako inwestycja pod wynajem.

Stan lokalu – do własnej aranżacji

Najważniejsze informacje:

  • powierzchnia: 25,1 m²
  • cena: 174 000 zł
  • parter
  • wysokie pomieszczenia – duża kubatura
  • wymienione instalacje
  • nowa stolarka okienna i drzwiowa
  • budynek po renowacji

Mieszkanie łączy w sobie urok historycznej kamienicy z komfortem nowoczesnego wnętrza. Doskonała propozycja dla osób ceniących klimat starych budynków i solidne wykonanie.

Podobne oferty

Mieszkanie na sprzedaż

Bydgoszcz, Śródmieście

1 pokoj 28 m2 7 678,57 zł/m2

Mieszkanie na sprzedaż

Bydgoszcz, Śródmieście

2 pokoje 25 m2 9 000,00 zł/m2
Nowa oferta

Mieszkanie na sprzedaż

Bydgoszcz, Śródmieście

1 pokoj 26 m2 6 949,81 zł/m2
Nowa oferta
Nowa oferta

Mieszkanie na sprzedaż

Bydgoszcz, Śródmieście

1 pokoj 25 m2 6 960,00 zł/m2
Nowa oferta

Agent

Proszę wprowadzić poprawne imię i nazwisko
Proszę wprowadzić poprawny numer telefonu
Proszę wprowadzić poprawny adres e-mail
Proszę zaznaczyć wymagane zgody
Rozwiąż równanie:
12 4
Niepoprawny wynik