Mieszkanie na sprzedaż Bydgoszcz, Centrum

3 pokoje
86.42 m²
11 293,68 zł/m2
parter
OJN-MS-124960

976 000 zł

Mieszkanie na sprzedaż
Nowa oferta

Szczegóły oferty

Symbol oferty OJN-MS-124960
Powierzchnia 86,42 m²
Powierzchnia użytkowa [m2] 76,91 m²
Liczba pokoi 3
Liczba sypialni 2
Rodzaj budynku kamienica
Technologia budowlana cegła stara
Standard
Opłaty w czynszu fundusz remontowy, woda, wywóz nieczystości, wywóz śmieci, zaliczka na fundusz remontowy
Opłaty wg liczników gaz, prąd
Piętro parter
Liczba pięter w budynku 4
Garaż brak
Piwnica [m2] 8,36 m²
Stan lokalu do wprowadzenia
Mies. czynsz admin. 660 PLN
Okna DREWNIANE NOWY TYP
Instalacje dobre
Balkon średni
Liczba balkonów 1
Parking strzeżony (odległość w metrach) 300 m
Widok park/skwer
Gaz tak - miejski
Woda jest
Dojazd asfalt
Otoczenie centrum miasta
Ogrzewanie piec dwufunkcyjny
Usytuowanie dwustronne
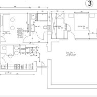
Pomieszczenia
Powierzchnia pokoi 12;16,4;20 m2
Podłogi pokoi deska drewniana
Typ kuchni jasna z oknem
Rodzaj kuchni kuchnia z jadalnią z wyjściem na taras
Powierzchnia kuchni 14 m2
Podłoga kuchni kafle
Typ łazienki razem z wc
Liczba łazienek 1
Glazura łazienki nowego typu
Liczba przedpokoi 1

Opis nieruchomości

Przepiękne mieszkanie w sercu Dzielnicy Muzycznej w Bydgoszczy
Polecam do sprzedaży wyjątkowe, stylowe mieszkanie o powierzchni 76,91m², położone na parterze kamienicy w jednej z najbardziej prestiżowych części miasta — w Dzielnicy Muzycznej, w bezpośrednim sąsiedztwie Filharmonii Pomorskiej.
Mieszkanie składa się z:
• przestronnego salonu,
• dwóch sypialni,
• kuchni z wyjściem na balkon,
• łazienki,
• przedpokoju oraz garderoby.
Z sypialni bezpośrednie wejście do garderoby, natomiast z kuchni i pokoju - wyjście na taras położony od strony północnej, z widokiem na ogród i Filharmonię — idealne miejsce na poranną kawę lub wieczorny odpoczynek wśród zieleni.
Mieszkanie jest po generalnym remoncie, w pełni umeblowane i wyposażone – sprzedawane z całym wyposażeniem, gotowe do wprowadzenia się bez dodatkowych nakładów.

To niezwykle atrakcyjna oferta dla osób poszukujących komfortu, elegancji i wyjątkowej lokalizacji.
Dzielnica Muzyczna to jedno z najbardziej pożądanych miejsc w Bydgoszczy – pełne klimatu, kultury i zieleni.
W pobliżu znajdują się szkoły, teatry, restauracje, główna ulica Gdańska, a także doskonała komunikacja miejska. Wszystko, czego potrzebujesz, jest na wyciągnięcie ręki.


Czynsz do wspólnoty 660 zł/2 osoby
Ogrzewanie gazowe- nowoczesny piec dwufunkcyjny.

Oferta godna uwagi.
Polecam i zapraszam na prezentację.

Lokalizacja nieruchomości

Podobne oferty

Mieszkanie na sprzedaż

Bydgoszcz, Centrum

4 pokoje 154 m2 6 168,83 zł/m2

Mieszkanie na sprzedaż

Bydgoszcz, Centrum

4 pokoje 134 m2 7 000,00 zł/m2

Mieszkanie na sprzedaż

Bydgoszcz, Centrum

4 pokoje 78 m2 12 500,00 zł/m2

Mieszkanie na sprzedaż

Bydgoszcz, Centrum

2 pokoje 67 m2 12 500,00 zł/m2

Agent

Proszę wprowadzić poprawne imię i nazwisko
Proszę wprowadzić poprawny numer telefonu
Proszę wprowadzić poprawny adres e-mail
Proszę zaznaczyć wymagane zgody
Rozwiąż równanie:
23 6
Niepoprawny wynik