Mieszkanie na wynajem Bydgoszcz, Centrum

3 pokoje
86.42 m²
46,29 zł/m2
parter
OJN-MW-124961

4 000 zł

Mieszkanie na wynajem
Nowa oferta

Szczegóły oferty

Symbol oferty OJN-MW-124961
Powierzchnia 86,42 m²
Powierzchnia użytkowa [m2] 76,91 m²
Liczba pokoi 3
Liczba sypialni 2
Rodzaj budynku kamienica
Technologia budowlana cegła stara
Standard
Opłaty w czynszu fundusz remontowy, woda, wywóz nieczystości, wywóz śmieci, zaliczka na fundusz remontowy
Opłaty wg liczników gaz, prąd
Piętro parter
Liczba pięter w budynku 4
Garaż brak
Piwnica [m2] 8,36 m²
Stan lokalu do wprowadzenia
Mies. czynsz admin. 660 PLN
Okna DREWNIANE NOWY TYP
Instalacje dobre
Balkon średni
Liczba balkonów 1
Parking strzeżony (odległość w metrach) 300 m
Widok park/skwer
Gaz tak - miejski
Woda jest
Dojazd asfalt
Otoczenie centrum miasta
Ogrzewanie piec dwufunkcyjny
Usytuowanie dwustronne
Pomieszczenia
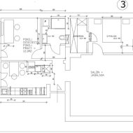
Powierzchnia pokoi 12;16,4;20 m2
Podłogi pokoi deska drewniana
Typ kuchni jasna z oknem
Rodzaj kuchni kuchnia z jadalnią z wyjściem na taras
Powierzchnia kuchni 14 m2
Podłoga kuchni kafle
Typ łazienki razem z wc
Liczba łazienek 1
Glazura łazienki nowego typu
Liczba przedpokoi 1

Opis nieruchomości

Przepiękne mieszkanie w sercu Dzielnicy Muzycznej w Bydgoszczy
Polecam do wynajęcia wyjątkowe, stylowe mieszkanie o powierzchni 76,91m², położone na parterze kamienicy w jednej z najbardziej prestiżowych części miasta — w Dzielnicy Muzycznej, w bezpośrednim sąsiedztwie Filharmonii Pomorskiej.
Mieszkanie składa się z:
• przestronnego salonu,
• dwóch sypialni,
• kuchni z wyjściem na balkon,
• łazienki,
• przedpokoju oraz garderoby.
Z sypialni bezpośrednie wejście do garderoby, natomiast z kuchni i pokoju - wyjście na taras położony od strony północnej, z widokiem na ogród i Filharmonię — idealne miejsce na poranną kawę lub wieczorny odpoczynek wśród zieleni.
Mieszkanie jest po generalnym remoncie, w pełni umeblowane i wyposażone – sprzedawane z całym wyposażeniem, gotowe do wprowadzenia się bez dodatkowych nakładów.

To niezwykle atrakcyjna oferta dla osób poszukujących komfortu, elegancji i wyjątkowej lokalizacji.
Dzielnica Muzyczna to jedno z najbardziej pożądanych miejsc w Bydgoszczy – pełne klimatu, kultury i zieleni.
W pobliżu znajdują się szkoły, teatry, restauracje, główna ulica Gdańska, a także doskonała komunikacja miejska. Wszystko, czego potrzebujesz, jest na wyciągnięcie ręki.


Czynsz najmu 3999 zł + czynsz do wspólnoty 660 zł/2 osoby + prąd i gaz wg zużycia 
Kaucja 4999 zł


Oferta godna uwagi.
Polecam i zapraszam na prezentację.


For rent — a beautiful and spacious 76,91 m² apartment located on the ground floor of a charming townhouse in one of the most prestigious areas of Bydgoszcz — the Music District, right next to the Pomeranian Philharmonic.
The apartment consists of:
• a large living room,
• two bedrooms,
• a kitchen with access to a balcony,
• a bathroom, • a hallway, and a walk-in wardrobe.
The master bedroom has direct access to the wardrobe, and both the second room and kitchen open onto a terrace overlooking the garden and the Philharmonic. The terrace faces north, offering a pleasant shade during warm summer days.
The apartment has been completely renovated, is fully furnished and equipped, and ready to move in.
Location:
The Music District is one of the most desirable areas in Bydgoszcz — full of charm, culture, and greenery. Within walking distance you’ll find schools, theatres, restaurants, the Philharmonic, the main Gdańska Street, and excellent public transport connections. Everything you need is right at your doorstep!

Rent: 3,999 PLN / month + fees about 990 + electricity
Refundable deposit: 4,999 PLN

A perfect offer for those who value elegance, comfort, and the unique atmosphere of this exceptional part of the city.


 

 

Lokalizacja nieruchomości

Podobne oferty

Mieszkanie na wynajem

Bydgoszcz, Centrum

4 pokoje 85 m2 58,82 zł/m2

Mieszkanie na wynajem

Bydgoszcz, Centrum

4 pokoje 96 m2 51,04 zł/m2

Mieszkanie na wynajem

Bydgoszcz, Centrum

4 pokoje 140 m2 35,00 zł/m2

Mieszkanie na wynajem

Bydgoszcz, Centrum

2 pokoje 67 m2 65,67 zł/m2

Agent

Proszę wprowadzić poprawne imię i nazwisko
Proszę wprowadzić poprawny numer telefonu
Proszę wprowadzić poprawny adres e-mail
Proszę zaznaczyć wymagane zgody
Rozwiąż równanie:
10 2
Niepoprawny wynik